slider-home01
BRAKE TESTING. REINVENTED.

Plate Brake Tester PBT-1024 PRIMO NG

Description:
Plate brake tester for the brake efficiency test for main inspections in accordance with German § 29 StVZO.

– Digital brake force sensors
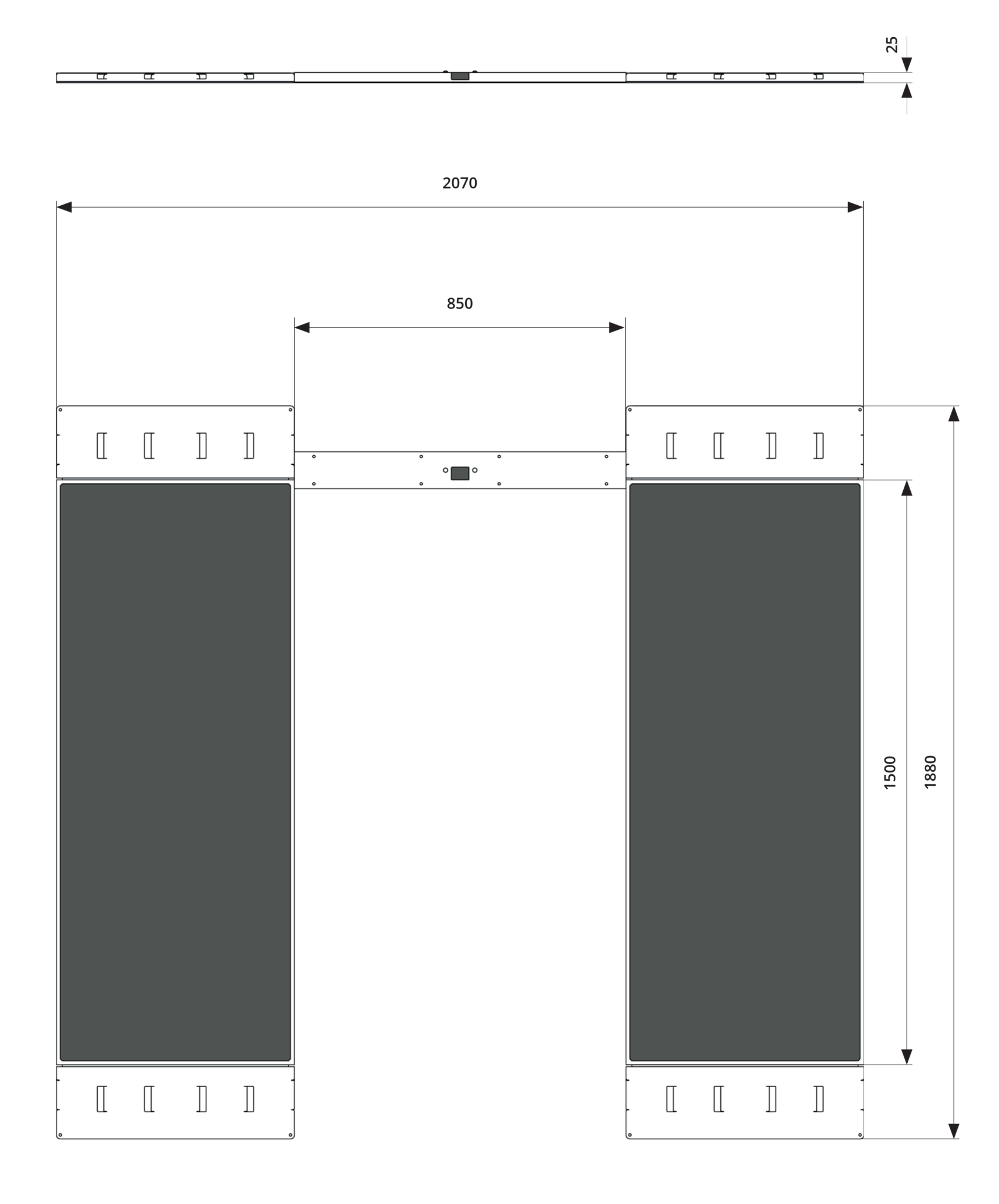
– Only 25 mm overall height
– 3.5 t test load/4.0 t crossing capacity
– Radar unit for live speed measurement (contact-free)
– Maintenance free, fully galvanized mechanics
– Wear-resistant high-grip surface coating
– ASA-Livestream Interface
– Modern, bright digital display
– DIN EN ISO 17025 calibration
– Easy and fast installation
– No foundation work required
– Approved according to brake tester guideline 2021 (2023-10-DEK231031)

Way ahead of others:
– Plate brake tester can be crossed directly with your vehicle
– Suitable for trailer testing
– Suitable for all-wheel vehicles
– Electric hand brake testable
– For tuning and racing applications (lowered vehicles)
– Ideal for rented workshops
– Visualize, save, print and process test data

Technical drawing of the PBT-1024 PRIMO NG plate brake tester

Scope of delivery:
2 x Brake plates
4 x Drive-on/-off ramps
1 x Radar unit
1 x Digital display with power supply
1 × Wall bracket for display
1 × ASA-Livestream V1.2
2 x Cable protection cover
1 x Wiring Kit
1 x Assembly kit
1 × Product information

Product Video

The World's Flattest Plate Brake Tester

With an overall height of just 25 mm, the PBT-1024 PRIMO NG is the ideal brake tester for cars of all types – even with lowered racing and motorsport vehicles, brake force testing is no problem. Of course, caravans, motorhomes, vans and trailers can also be tested. The patented, wear-resistant high-grip surface coating guarantees high braking values and dynamic, road-like braking behavior.

Choose any installation location for the PBT-1024 PRIMO NG, as the above-ground installation does not require any foundation work. The test stand can even be installed at entrance and exit areas, as it can be driven over crosswise. The heart of the PBT-1024 PRIMO is a digital, tamper-proof data bus, which connects all sensors and the digital display.

The core of our plate brake tester is a digital, tamper-proof data bus that connects the intelligent sensors and the digital display. The easy-to-read and bright 12-digit digital display (with VESA mount) shows brake values, brake force difference and the “live” measured test speed.

Only with our patented radar measuring system do you have a real speed measurement during the brake test. Of course, all measured values are available at the standardized ASA livestream data interface (according to brake tester guideline 2021) and can be used by the test engineer.

Many other functions such as saving, printing or visualization are of course made possible by full compatibility with our “NPC” products.

With an overall height of only 25 mm, the PBT-1024 PRIMO is the ideal brake tester for passenger cars of any design – even with stanced racing and motorsport vehicles, brake force testing is no problem. The patented, wear-resistant high-grip surface coating guarantees high braking values and dynamic, road-like braking behavior.

With an overall height of only 25 mm, the PBT-1024 PRIMO is the ideal brake tester for passenger cars of any design – even with stanced racing and motorsport vehicles, brake force testing is no problem. The patented, wear-resistant high-grip surface coating guarantees high braking values and dynamic, road-like braking behavior.

You can choose any installation site for the PBT-1024 PRIMO, because the above-ground installation does not require any foundational work. The brake tester can even be placed at entry and exit areas, as it can be crossed directly. The heart of the PBT-1024 PRIMO is a digital, tamper-proof data bus, which connects all sensors and the digital display.

The easy-to-read, 12-digit digital display (with VESA mount) shows braking values, braking force difference and the “live” measured speed. The easy-to-read, 12-digit digital display (with VESA mount) shows braking values, braking force difference and the “live” measured speed.

Only with our patented radar measuring system do you have a real speed measurement during the brake test. Of course, all measured values ​​are available at the standardized ASA live stream data interface (according to the 2011 directive) and can be used by the test engineer.

Many other functions such as saving, printing or visualization are of course made possible by full compatibility with our NPC products.

Assembly Video

Easter sale (10.04 - 30.04)

5% discount

on all products in the store! Code: 2025Ostern5
Cartesy GmbH logo with a Santa hat on the C

We're on vacation

20.12.25 – 06.01.26

Dear Sir or Madam,

we would like to thank you again this year for your loyalty and trust!

Since we are on company vacation over the holidays, we would like to point out that no goods can be delivered during this time.

Incoming orders will be processed from January 7th, 2026.

The entire Cartesy team wishes you a Merry Christmas and a Happy New Year 2026!